
Current Wally’s House Facility
At 1,800 sf, Wally’s House is overcrowded and not sustainable.
The waiting room for families, forensic interview room and exam room leave little additional space for community partners or for supporting services.
A typical program providing similar child abuse assessment and supporting services requires a minimum of 3,000 sf just for core services.
Extra room is needed for best practice supplemental programming – outreach/prevention and on-site therapeutic service for children post-assessment.


Pathway to Hope Plan
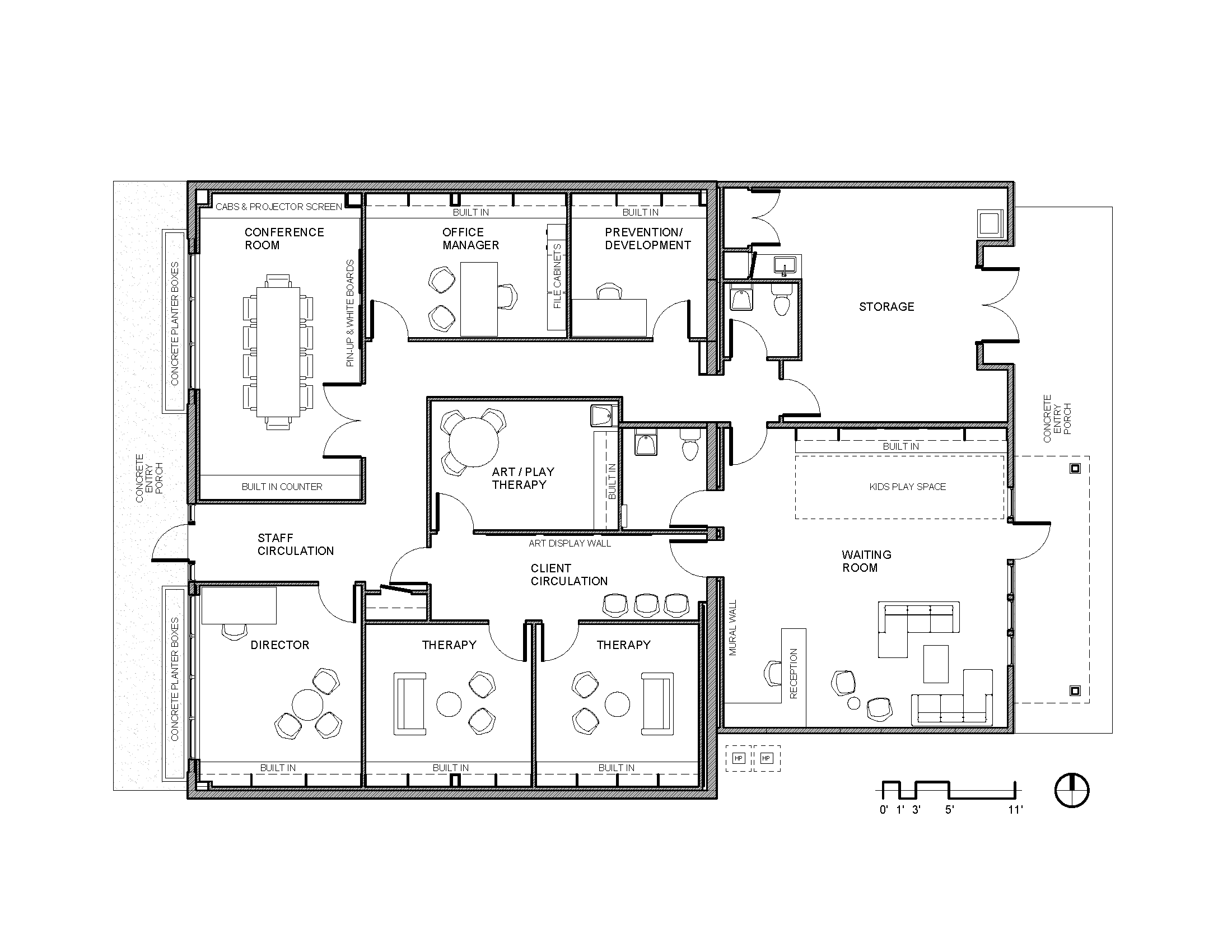
The new Wally’s House Children’s Wellness Center will allow families to go directly to therapy appointments in the new facility, just west of the parking area.
Families park in the lot on 8th Street, just off Hwy 101. The entrance for child abuse assessment and exams is in the current facility, east of the parking lot.
Wally’s House Children’s Wellness Center
The new facility will house the outreach/prevention program, a full-time therapist office, and a second office for an intern therapist, with therapeutic meeting spaces to accommodate family therapy, play therapy, and art/tactile therapy.
Wally’s House offices will be co-located in the Children’s Wellness Center, along with a volunteer area (with a separate entrance from the therapy clients). This plan will expand available space for community partners to observe forensic interviews in the small current facility.

Join others to support the Wally’s House Pathway to Hope campaign now by making an annual commitment. Every gift matters!
